Cart

Oficinas en construcción - Sarmiento 1200

USD 68250


Descripción

Se ofrecen en la presente publicación oficinas, en construcción, ubicadas en calle Sarmiento 1227 de la ciudad de Rosario cuyos valores son a partir de USD 72.800.
Dicha torre interna está compuesta de PB y 10 pisos y cada piso contiene 2 departamentos o 3 según el piso.

Las oficinas poseerán:
- Fina terminación de yeseria en todos los ambientes.
- baños totalmente equipados.

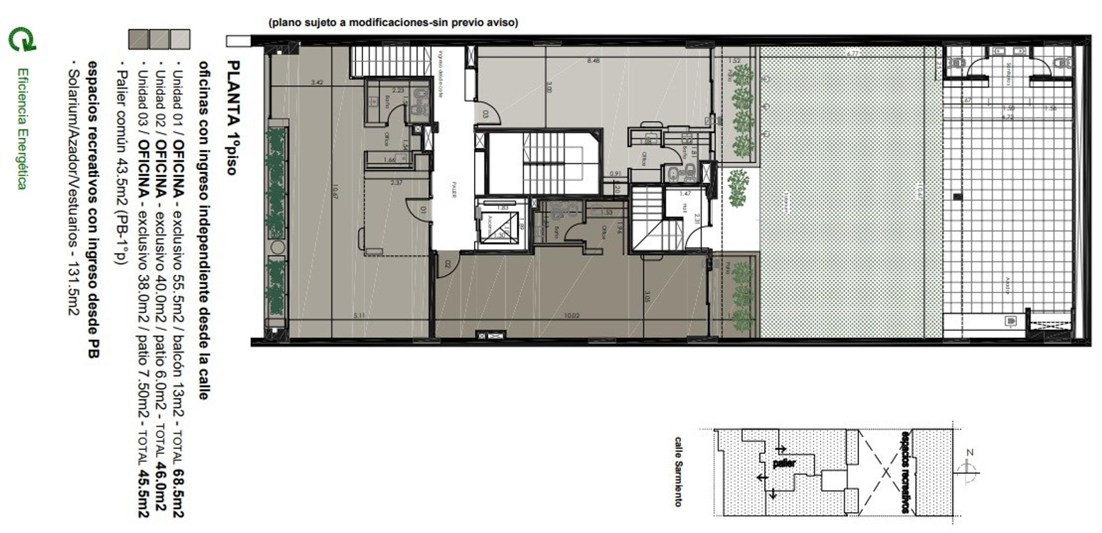
SE OFRECEN EN ESTE EDIFICIO 3 OFICINAS UBICADAS EN EL PRIMER PISO:

OFICINA N°1: Superficie cubierta: 55,5 m2 y balcón de 13 m2. Valor: USD 88.800.
OFICINA N°2: Superficie cubierta: 40 m2 y patio de 6 m2. Valor: USD 73.600
OFICINA N°3: Superficie cubierta: 38 m2 y patio de 7,5 m2. Valor: USD 72.800


ENTREGA EN MARZO 2023.

Forma de pago: Anticipo del 30% y 30 cuotas ajustadas al indice CAC.
Disponibles cocheras y bauleras!!

Datos de la Propiedad

  • 1
    Baño/s
  • 38.00 m
    Sup. Cubierta

Galería de fotos

Otras características

Ubicación



Related Properties

No encontrás lo que buscabas?

Ponete en contacto con nosotros para poder ayudarte.