Cart

Departamentos de 1 dormitorio en construcción - Sarmiento 1200

USD 73200


Descripción

Se ofrecen en la presente publicación departamentos de 1 dormitorio, en construcción, ubicados en calle Sarmiento 1227 de la ciudad de Rosario cuyos valores son a partir de USD 75.750.
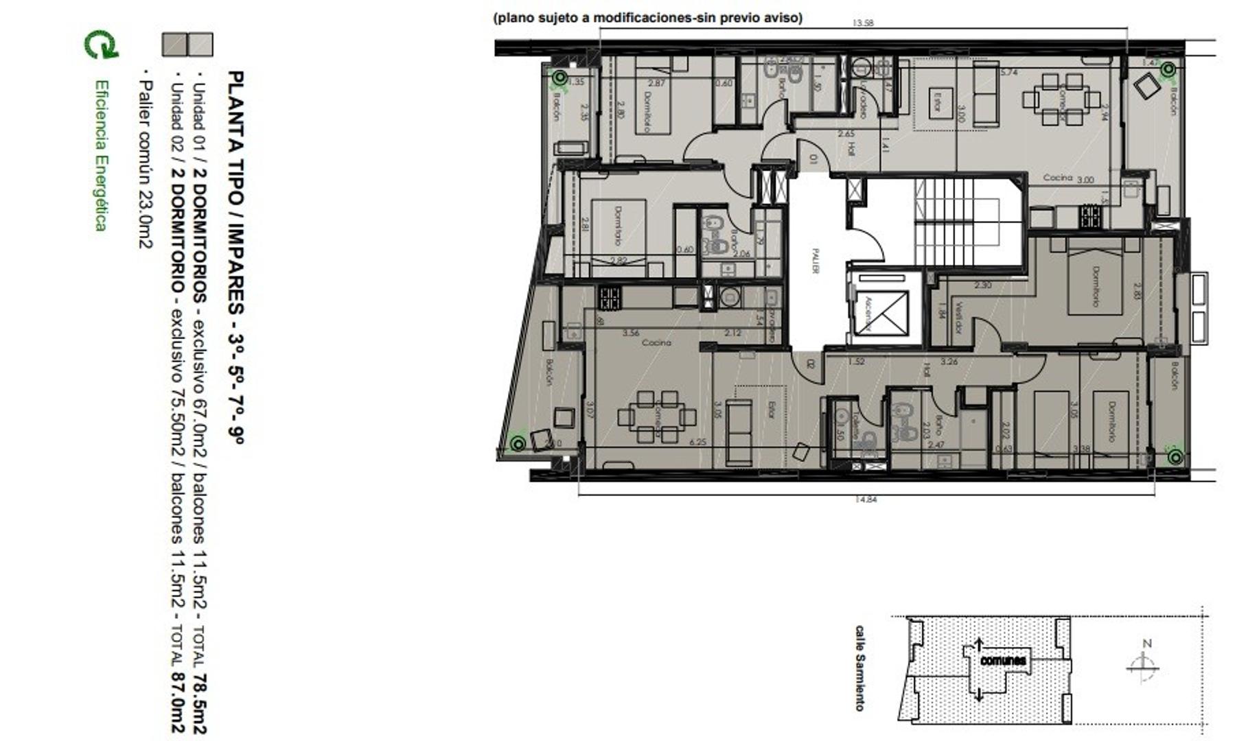
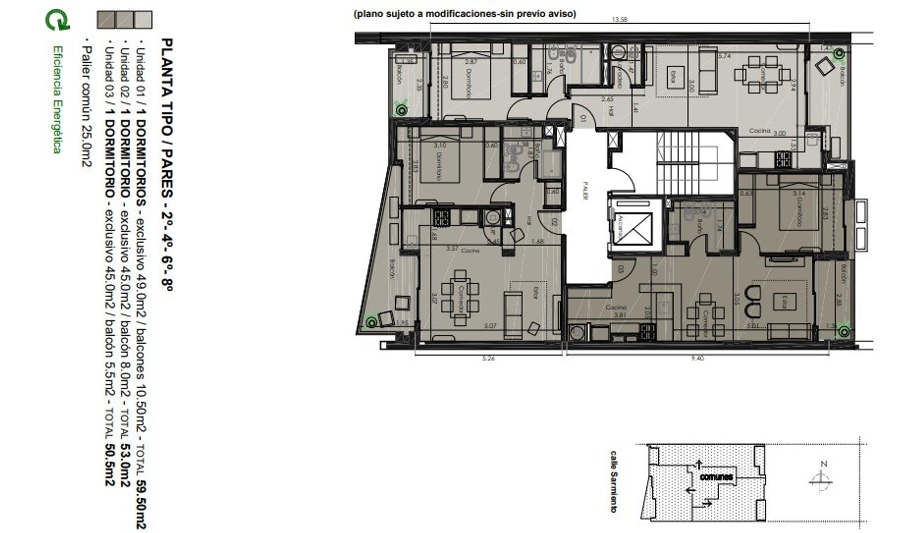
Dicha torre interna está compuesta de PB y 10 pisos y cada piso contiene 2 departamentos o 3 según el piso.

Los departamentos poseerán:
- Fina terminación de yeseria en todos los ambientes.
- cocinas con muebles bajo mesadas y alacenas de primera calidad.
- frente de placares
- baños totalmente equipados.
- espacio para lavarropas.

Hay departamentos de 1 dormitorio que poseen 50,50 m2 de uso exclusivos:
- 45 m2 cubiertos
- balcon de 5,50 m2

Y hay otros (de 1 dormitorio también) que poseen 59,50 m2 de uso exclusivo.
- 49 m2 cubiertos
- un balcon de 6,5 m2 y otro de 4 m2.


ENTREGA EN MARZO 2023.

Forma de pago: Anticipo del 30% y 30 cuotas ajustadas al indice CAC.
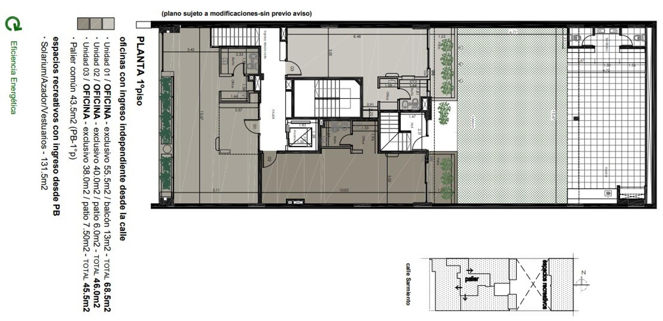
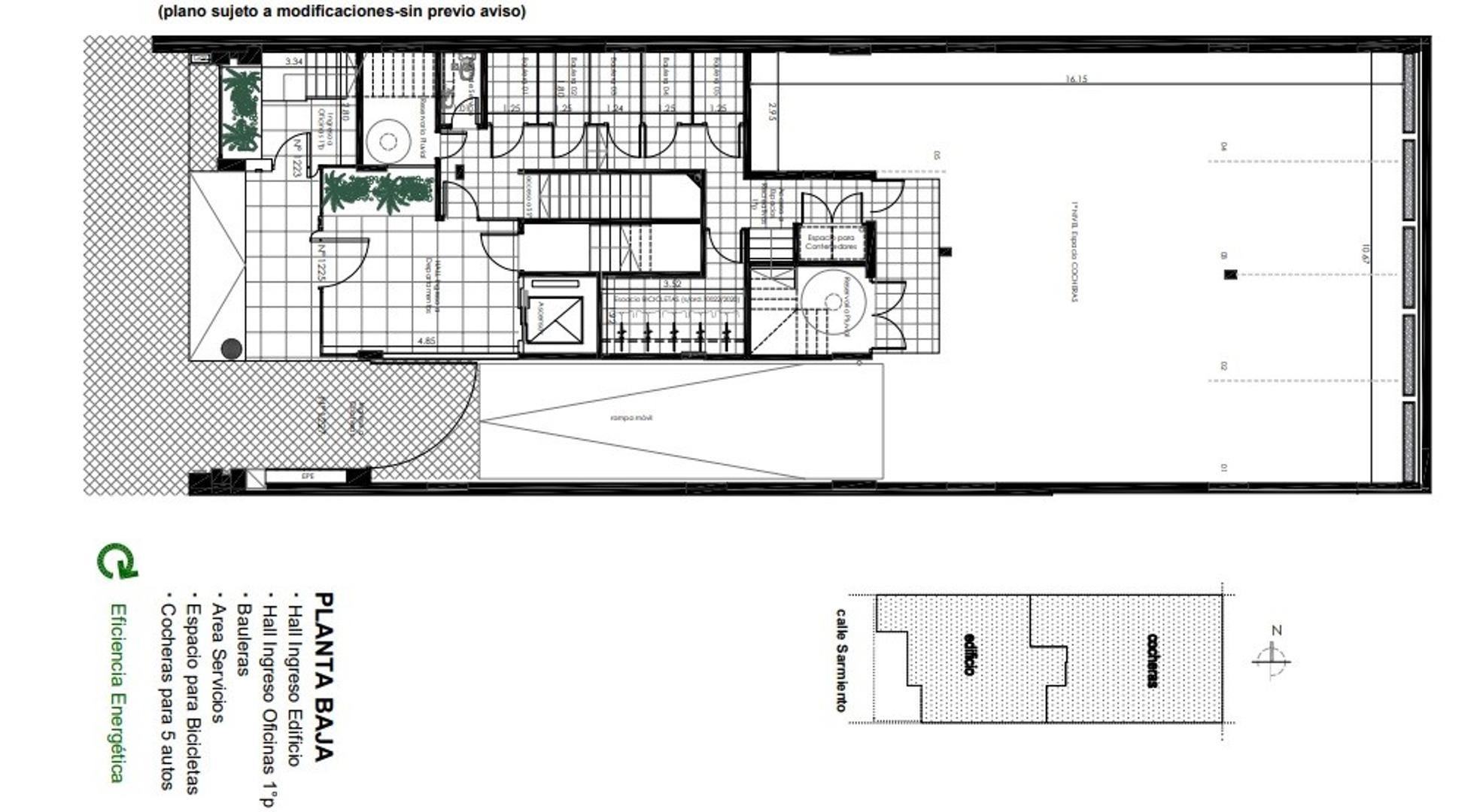
Disponibles cocheras y bauleras!!

Datos de la Propiedad

  • 1
    Dormitorio/s
  • 1
    Baño/s
  • 45.00 m
    Sup. Cubierta

Galería de fotos

Otras características

Ubicación



Related Properties

No encontrás lo que buscabas?

Ponete en contacto con nosotros para poder ayudarte.